An innovative approach to rebuilding after disaster
Discover the Imprint Collective
  • Gallery
  • Vision
  • Studio
  • ADUs
  • Guides
  • Contact
Entire
Wineries
Residential
Restaurant
Hospitality
Train
Un-built

Kamen Residence

Sonoma, California
‍Perched on 300 acres of rugged, ancient terrain with a 50-acre vineyard, the site is reached via a winding, narrow road.
Discover

Rivers Marie Winery

Calistoga, California
The design adopts a "California barn" aesthetic with modern touches, arranged as a campus of smaller buildings that blend with the neighborhood scale.
Discover

Lasseter Family Winery

Glen Ellen, California
The Lasseter Family Winery is thoughtfully integrated into its surroundings, drawing inspiration from early Northern California barn architecture.
Discover

Mending Wall Winery

Saint Helena, California
Set back from the Silverado Trail and adjacent to a natural water drainage from the Mayacamas Mountains, the building is carefully integrated into its vineyard surroundings
Discover

The Napa Valley Reserve

Saint Helena, California
The project was conceived as a campus of modern yet rustic buildings, each designed to provide a distinct experience within the club’s overall function.
Discover

Paul Hobbs Winery

Sonoma County, California
The design takes advantage of the natural hillside, organizing the campus to separate functions efficiently.
Discover

Healdsburg House

Healdsburg, California
The interior was thoughtfully opened up to create uninterrupted sight-lines from one end of the home to the other, enhancing flow and connectivity.
Discover

Rooney Residence

San Diego, California
‍The phased master plan carefully balanced modernization with preservation, ensuring the project’s longevity through and beyond the historical designation process.
Discover

Levine Residence

San Diego, California
Key renovations included a newly expanded primary suite, updates to the kitchen and two bathrooms, and a rear yard designed to foster entertaining.
Discover

Tweed Residence

Escondido, California
Situated on a semi-rural 1.29-acre parcel, the property features a 1950s Ranch-style home with outdated exterior details and an interior in need of significant transformation.
Discover

Maryland Street

San Diego, California
The remodel reimagines the home’s flow and functionality by opening up the interior public spaces, allowing movement and natural ventilation to circulate freely from front to back.
Discover

Justi Car Garage

Glen Ellen, California
The new garage was designed with a timeless aesthetic to complement the existing 1/4 scale railroad and train barn
Discover

Justi Creek Pond

Glen Ellen, California
‍A thoughtfully designed campus of small, rustic structures and features was arranged around the restored pond.
Discover

Chew Chew

Sonoma County, California
‍Embracing the site’s rich character, the design introduces a fully glazed pavilion perched at the pinnacle of the grove.
Discover

Bouchon Bakery

Yountville, California
‍Located in the heart of Yountville, California, Bouchon Bakery is a beloved destination for both locals and tourists from around the world.
Discover

Rosso Mozzarella

Petaluma, California
The design embraces an industrial modern aesthetic, featuring exposed steel beams, rough-sawn wood, and galvanized metal accents
Discover

Rosso

Santa Rosa, California
The focal point of the space is the Mugnaini wood-fired oven, positioned on axis with the front door to create a warm, inviting atmosphere as guests arrive.
Discover

Patisserie Melanie

San Diego, California
‍The design centers around a bold yet minimalist service and display counter, serving as the boundary between the public dining area and the open kitchen.
Discover

Justi Train Stop

Glen Ellen, California
‍Located on a rural residential estate in Sonoma County, the train stop sits adjacent to the main residence and serves as the primary station for the owner’s quarter-scale steam engine.
Discover

Justi Train Station

Glen Ellen, California
The roof forms, exposed trusses, and intricate “painted lady” detailing bring the design to life, paying tribute to the history and charm of its predecessor while ensuring its legacy endures.
Discover

Justi Train Depot

Glen Ellen, California
The project preserves a piece of history while integrating seamlessly into its new, enchanting environment.
Discover

Justi Train Barn

Glen Ellen, California
‍The train barn was constructed as a highly customized pre-engineered steel building.
Discover

Coopers Hawk Headquarters

Un-Built | Rosemount, Illinois
Envisioned as a modern production and hospitality campus, the Cooper’s Hawk headquarters is organized around a strong central circulation spine that clearly separates public and operational worlds.
Discover

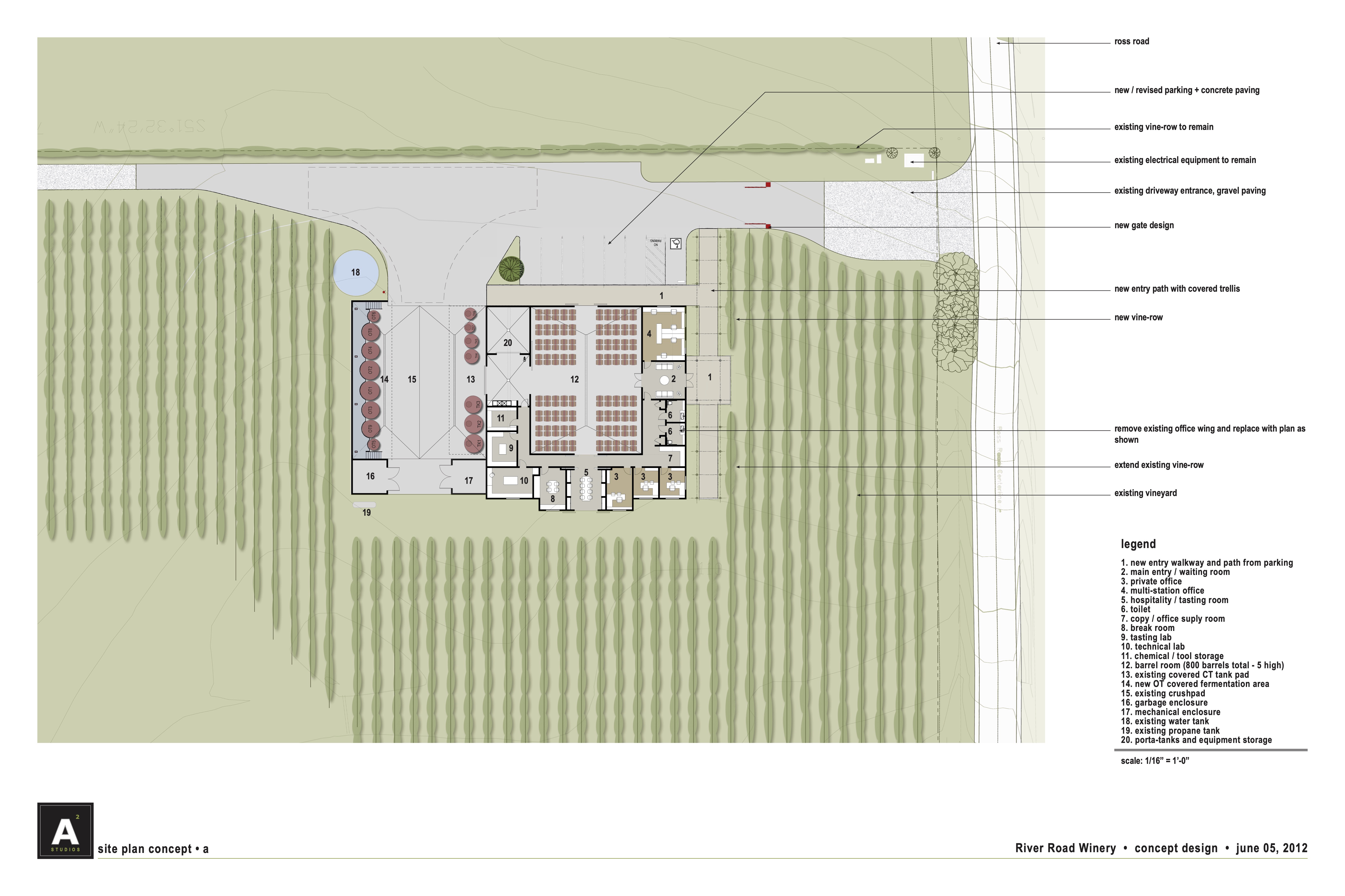
River Road Winery

Un-Built | Sebastopol, California
Commissioned to envision the next phase of the River Road Winery, we conceptualized a reorganized winemaking facility and hospitality center around a purposeful working landscape.
Discover

California Senior Housing

Un-Built | Novato, California
Selected as a finalist for an unrealized competition, this proposal imagined a sustainable mixed use neighborhood where homes for seniors and extended families are interwoven with community gardens, shared open spaces, and local employment, shaping a suburban site into a connected and resilient place to live.‍
Discover

Kenzo Estates Corporate House

Un-Built | Napa, California
Organized along a gently rising landscape, this estate is composed as a series of connected pavilions that unfold from a central arrival court. Living, guest, and work spaces extend outward to engage views, gardens, and outdoor rooms, creating a calm rhythm between built form and the surrounding terrain while preserving privacy and a strong sense of place.
Discover

Healdsburg Residence

Un-Built | Healdsburg, California
Perched in Healdsburg’s iconic wine country, where rolling vineyards, oak woodlands, and the Russian River valley shape the landscape, this 10,700 square foot residence blends indoor and outdoor living with sustainable materials and thoughtfully designed spaces for family life, gardens, and gathering.
Discover

Shilo Estates

Un-Built | Santa Rosa, California
Set into the hillside, this unique rural Sonoma County estate was envisioned as a six bedroom home with generous supporting spaces including a home gym, home office, sewing room, bunk room, and a six car garage.
Discover

Baldacci Family Vineyards

Un-Built | Napa, California
Master plan for Baldacci Family Vineyards in Napa reimagining production flow, crush pad and cave access while planning future hospitality spaces and landscape connections to support efficient, flexible winemaking operations.
Discover

Carlton Houses

Un-Built | San Diego, California
Side-by-side modern homes in Point Loma neighborhood frame sweeping views while preserving privacy between neighbors and adjacent properties through careful orientation, layered courtyards, and restrained architectural massing.
Discover

The Big Ugly

Un-Built | Calistoga, California
Conceived as a holistic retreat, The Big Ugly Spa is organized as a series of interconnected pavilions devoted to heart, mind, and health.
Discover

Heights Road Home One

Un-Built | Santa Rosa, California
Set within a terraced hillside scarred by wildfire, this Santa Rosa residence began as a grand rebuild vision, developed through a fully rendered, color presentation that reintroduced the home to the land through outdoor rooms, paths, and gardens.
Discover

Rollo House

Un-Built | Santa Rosa, California
Tucked into a gently sloping hillside shaped by wildfire, this home is composed as a series of simple forms that settle into the land and gather around shared outdoor rooms. Paths, terraces, and gardens guide daily movement between indoors and out, turning the act of rebuilding into an opportunity to reimagine how the home is lived in, connected to the landscape, and experienced over time.
Discover

Crossroad Poolhouse

Un-Built | Yountville, California
Set among Yountville’s surrounding vineyards along Yountville Cross Road, this guest cottage and pool house pair interprets rural Northern California character with modern restraint, creating quiet retreat spaces woven into the agricultural landscape.
Discover

Heights Road Home Two

Un-Built | Santa Rosa, California
Designed after the 2017 fire, this two story home on Heights Road was conceived as a modern second residence for a Silicon Valley client.
Discover

Måno Slope Studios

Un-Built | Stone Mountain, Georgia
Serving as consulting design architect for this new movie studio, we refined a campus master plan after the owners visited our Rivers Marie project and were drawn to its rural modern character.
Discover

The Mercantile

Un-Built | Torrey, Utah
Set within the red rock setting of Torrey, Utah, this adaptive reuse project transforms an existing structure into a rural modern mercantile and community hub.
Discover

Arrowhead Residence

Un-Built | Sonoma + Napa County, California
Set on a hillside split between Sonoma and Napa Counties, this estate was shaped by the owners’ dream of living above a wine cave that is quietly nestled into the land and accessed directly from the home.
Discover
A•SQUARED is a contemporary design studio seeking to embrace projects that present us with the challenges of vernacular living within the context of our modern environment.
GalleryVisionStudioADU
ProcessNoteworthyIn the loopContact