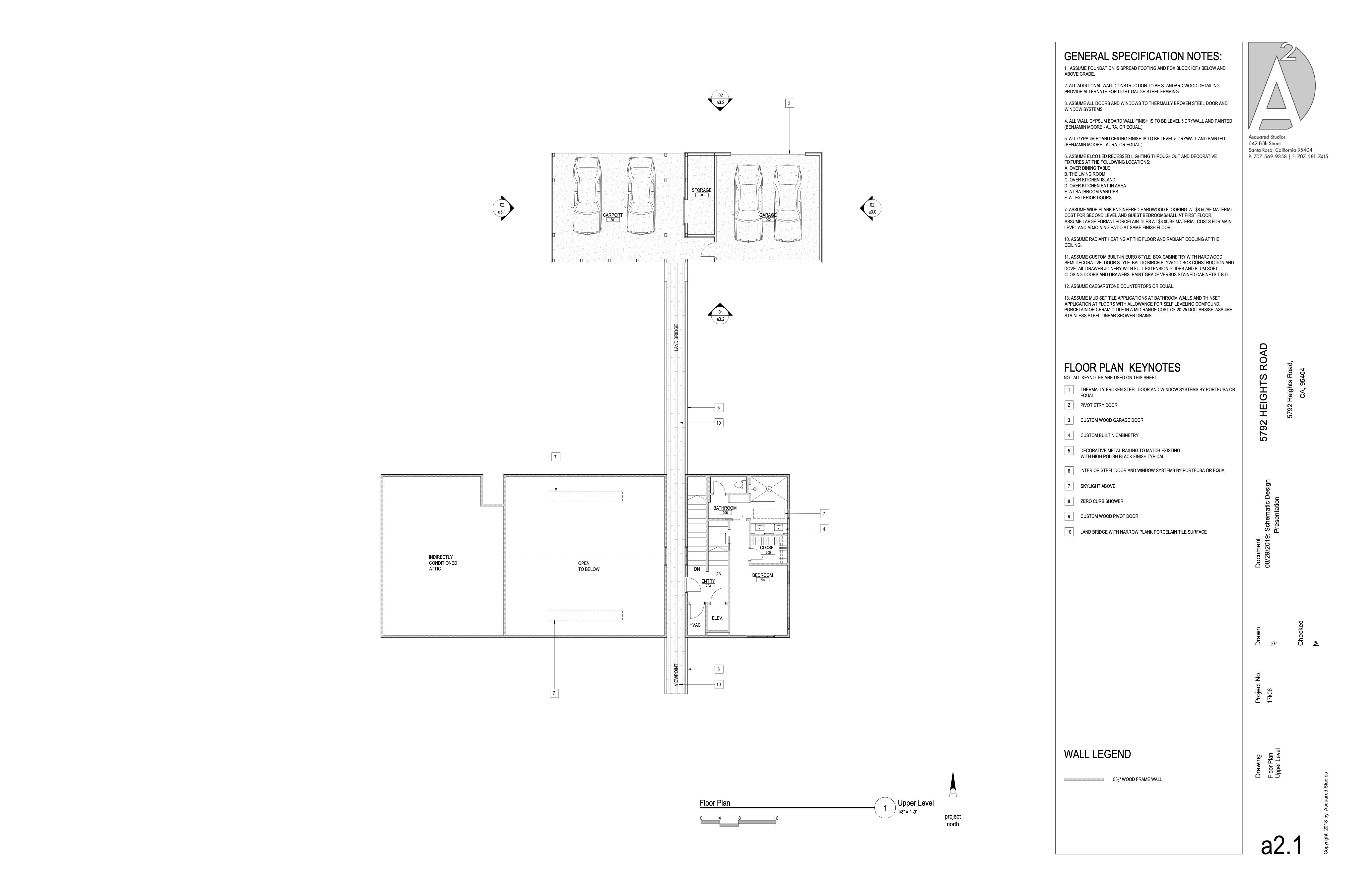
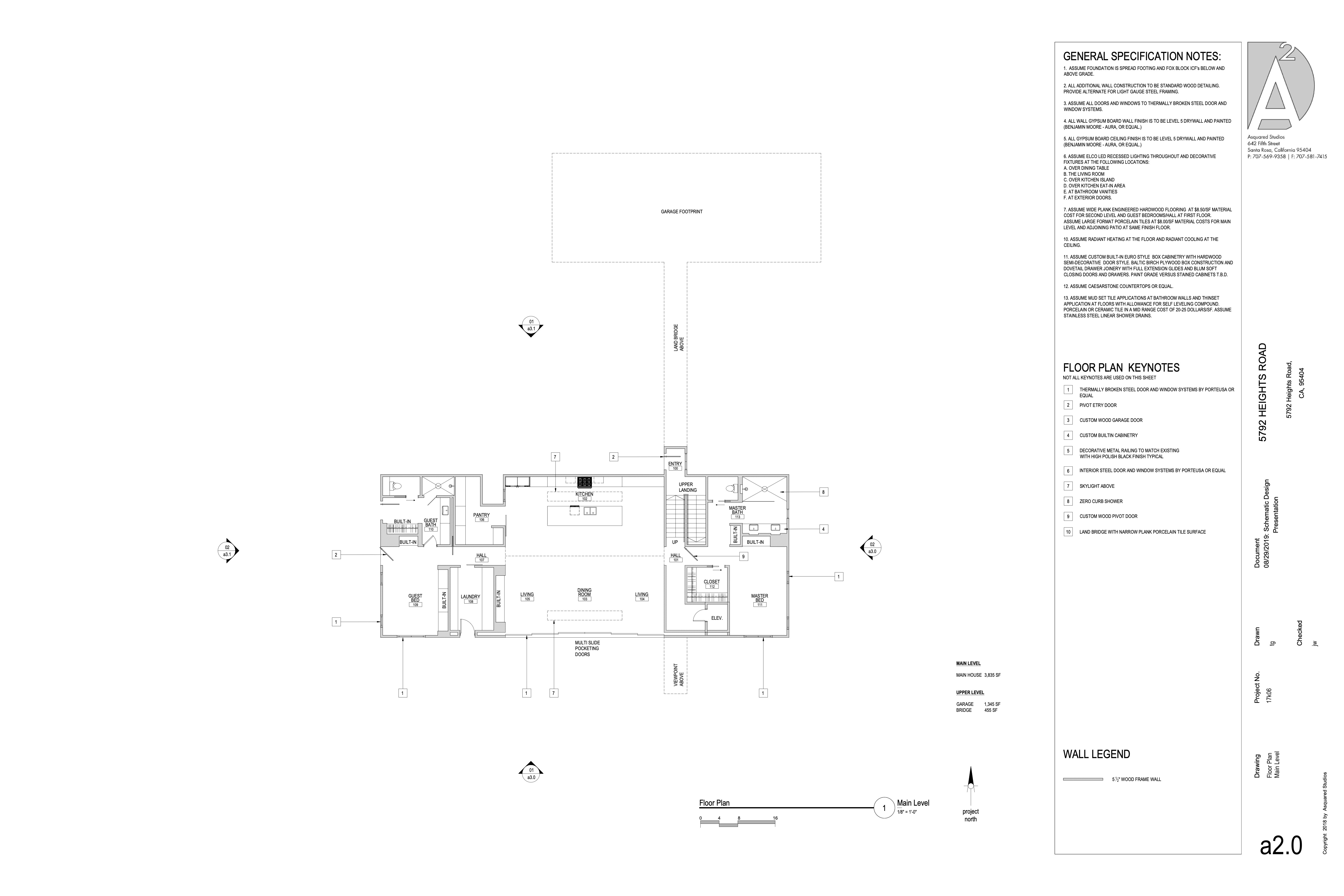
Heights Road Home One

Un-Built | Santa Rosa, California

Set within a terraced hillside scarred by wildfire, this Santa Rosa residence began as a grand rebuild vision, developed through a fully rendered, color presentation that reintroduced the home to the land through outdoor rooms, paths, and gardens. As the process unfolded, the owners realized that their post fire rental had taught them to live with less, and they asked for a second design direction that was smaller in scale, more modest, and distinctly modern. The resulting single level home opens to courtyards, decks, and the preserved pool terrace, creating an easy flow between indoors and out and a renewed sense of home.

No items found.

Kamen Residence

‍Perched on 300 acres of rugged, ancient terrain with a 50-acre vineyard, the site is reached via a winding, narrow road.

Rivers Marie Winery

The design adopts a "California barn" aesthetic with modern touches, arranged as a campus of smaller buildings that blend with the neighborhood scale.

Lasseter Family Winery

The Lasseter Family Winery is thoughtfully integrated into its surroundings, drawing inspiration from early Northern California barn architecture.