Coopers Hawk Headquarters

Un-Built | Rosemount, Illinois

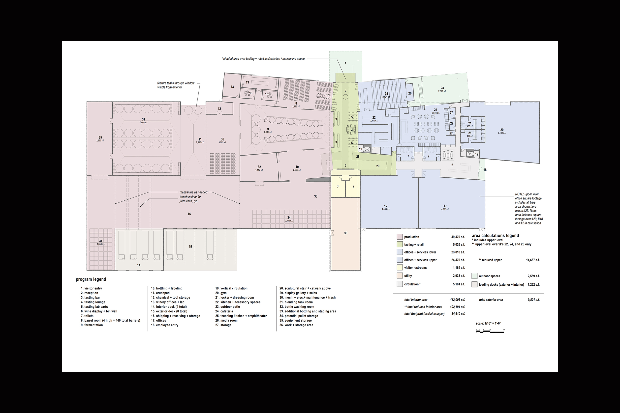
Envisioned as a modern production and hospitality campus, the Cooper’s Hawk headquarters is organized around a strong central circulation spine that clearly separates public and operational worlds. Winery production and bottling anchor one side of the building, while tasting, retail, offices, and culinary spaces unfold on the other. Designed as a place of learning as well as making, the architecture invites visitors into the craft of food and wine while supporting efficient growth, collaboration, and a contemporary brand presence.

No items found.

Kamen Residence

‍Perched on 300 acres of rugged, ancient terrain with a 50-acre vineyard, the site is reached via a winding, narrow road.

Rivers Marie Winery

The design adopts a "California barn" aesthetic with modern touches, arranged as a campus of smaller buildings that blend with the neighborhood scale.

Lasseter Family Winery

The Lasseter Family Winery is thoughtfully integrated into its surroundings, drawing inspiration from early Northern California barn architecture.